牧野下島町店舗

賃料 6.5万円

1/4
Point

牧野駅徒歩圏♪ 貸店舗♪

物件番号「16380」をお伝えください。

電話でお問合せ

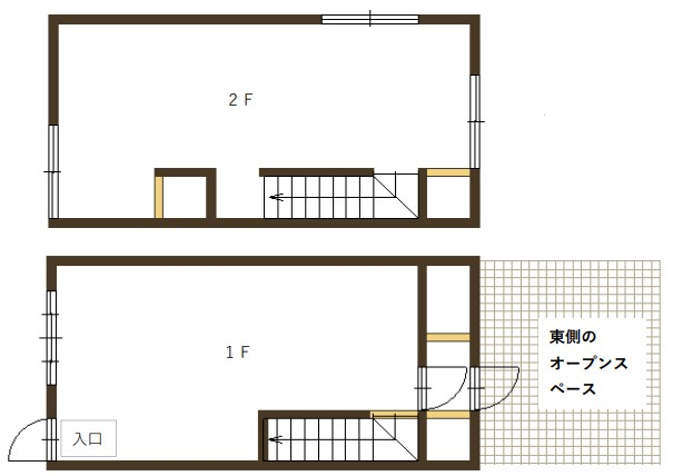
物件情報

賃料 6.5万円
管理費等 10,000円
敷金/保証金 1ヶ月/-
礼金 3ヶ月
タイプ 店舗・事務所
所在地
枚方市牧野下島町
交通 京阪本線 牧野駅まで 徒歩3分
面積 60.3m²
建物構造 木造
階/階建 1階~2階迄/2階建
敷引・償却 -
現況 営業中
取引態様 仲介
築年月 1978/11
特色 2026年3月末退去予定、内外装全て現状有姿渡し、連帯保証人必須、家賃保証加入要、借家人賠償責任付火災保険加入要
コメント 牧野駅徒歩圏♪ 貸店舗♪
※掲載されている物件データが現状と異なる場合は現状を優先します。

更新情報

情報更新日 2026年03月03日
次回更新予定日 2026年03月17日

物件番号「16380」をお伝えください。

電話でお問合せ
電話でお問合せ メールでお問合せ
メールでお問合せ