ステーションヒル枚方

賃料 20.482万円

1/10
Point

物件番号「16180」をお伝えください。

電話でお問合せ

物件情報

賃料 20.482万円
管理費等 -
敷金/保証金 12ヶ月/-
礼金 -
タイプ 事務所
所在地
枚方市岡東町19-1
交通 京阪本線 枚方市駅まで 徒歩1分
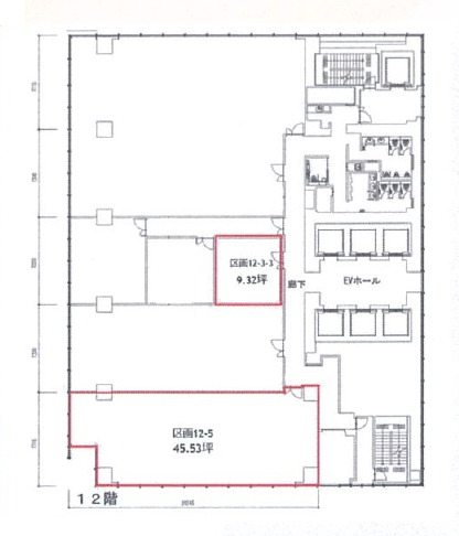
面積 30.8m²
建物構造 鉄骨鉄筋コンクリート造
階/階建 12階/26階建
敷引・償却 -
現況 空室
取引態様 仲介
築年月 2025/05
特色 5~17階事務所フロア、エレベーター有(6基)、OAフロア(天井高2,800㎜)、エアコン有、駐車場・バイク置き場紹介可
コメント
※掲載されている物件データが現状と異なる場合は現状を優先します。

更新情報

情報更新日 2025年10月02日
次回更新予定日 2025年10月30日

物件番号「16180」をお伝えください。

電話でお問合せ
電話でお問合せ メールでお問合せ
メールでお問合せ