6567:店・事 NSビル 4階
| 賃料 | 13.2万円 |
|---|---|
| 共益費・管理費 | 22,000円 |
| 坪賃料 | 7,504円 |
| 所在地 | 枚方市長尾元町5丁目 |
| 交通 | JR学研都市線 長尾駅まで 徒歩6分 |
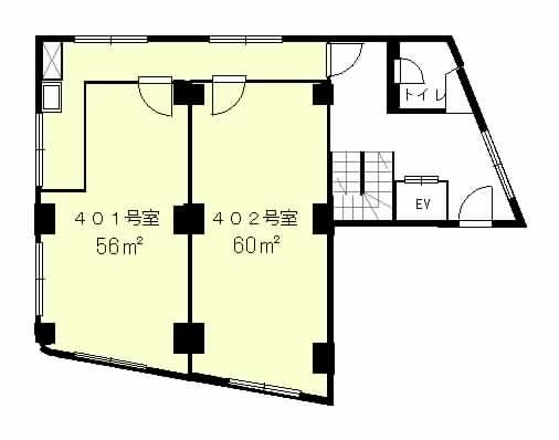
| 面積 | 58.15m²(17.59坪) |
| 築年月 | 1987/01 |
| 敷金 | 40万円 |
|---|---|
| 礼金 | 44万円 |
| 保証金 | - |
| 建物構造 | 鉄筋コンクリート造 |
| 所在階 | 4階/4階建 |
| 取引態様 | 仲介 |
| 更新 | 2年 |
| 敷引・償却 | - |
|---|---|
| 火災保険 | 要加入24,000円 保険期間2年 |
| 保証会社 | 必須 |
| 駐車場 | 近隣(空要確認)11,000円 |
| 諸費用 | |
| 引渡時期 | 即時 |
特色
2025年12月末退去予定、現状渡し(事務所仕様)、エアコン有、エレベーター有、家賃保証加入要、借家人賠償責任付火災保険加入要
コメント
★JR長尾駅徒歩5分!!エアコン、エレベーター付き事務所★
周辺地図
位置情報に関するご注意:現在位置情報は精査中の為、正確ではない場合があります。あくまで参考程度の情報となります。









