15761:事務所 朝日生命枚方ビル 6階
| 賃料 | 38.489万円 |
|---|---|
| 共益費・管理費 | 賃料に含む |
| 坪賃料 | 11,000円 |
| 所在地 | 枚方市大垣内町1丁目 |
| 交通 | 京阪本線 枚方市駅まで 徒歩4分 |
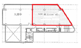
| 面積 | 115.66m²(34.98坪) |
| 築年月 | 1986/04 |
| 敷金 | 12ヶ月 |
|---|---|
| 礼金 | - |
| 保証金 | - |
| 建物構造 | 鉄筋コンクリート造 |
| 所在階 | 6階/7階建 |
| 取引態様 | 仲介 |
| 更新 |
| 敷引・償却 | - |
|---|---|
| 火災保険 | 要加入- |
| 保証会社 | |
| 駐車場 | 無 |
| 諸費用 | |
| 引渡時期 | 相談 |
特色
事務所仕様(事務所限定募集)、個別空調、24時間利用可、機械警備、エレベーター有
コメント
6階貸事務所♪♪
☆ 枚方市駅から徒歩4分 ☆
業種等お気軽にお問い合わせくださいませ。


