6053:店・事 マルエス牧野駅前グランドビル 3階
| 賃料 | 37.18万円 |
|---|---|
| 共益費・管理費 | 33,000円 |
| 坪賃料 | 7,001円 |
| 所在地 | 枚方市牧野下島町 |
| 交通 | 京阪本線 牧野駅まで 徒歩4分 |
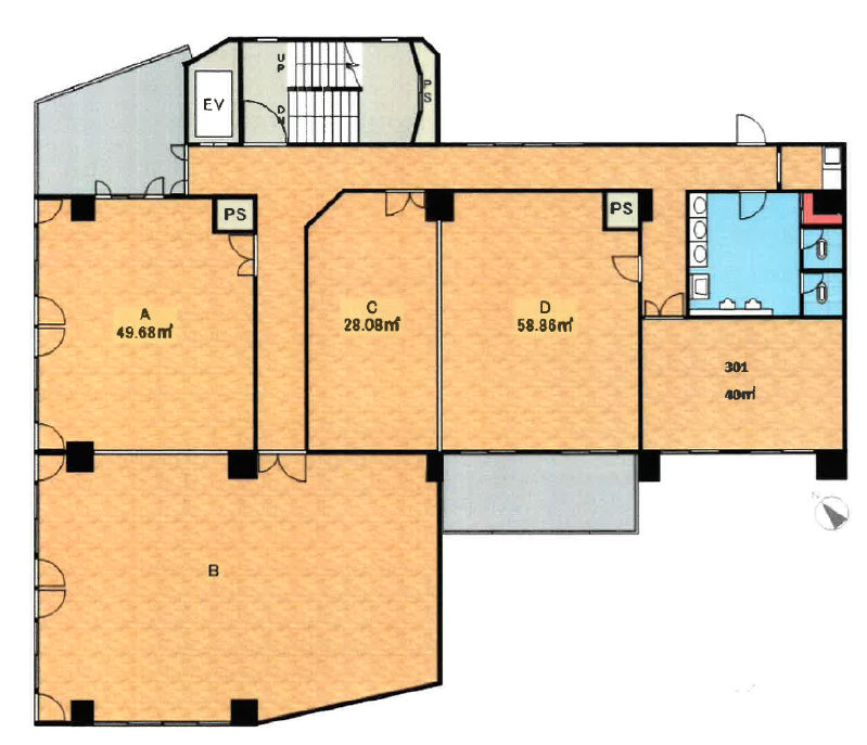
| 面積 | 175.54m²(53.1坪) |
| 築年月 | 1977/07 |
| 敷金 | 1ヶ月 |
|---|---|
| 礼金 | 1ヶ月 |
| 保証金 | - |
| 建物構造 | 鉄筋コンクリート造 |
| 所在階 | 3階/7階建 |
| 取引態様 | 仲介 |
| 更新 | 可 定期借家 |
| 敷引・償却 | - |
|---|---|
| 火災保険 | 要加入- 保険期間2年 |
| 保証会社 | 必須 K-net 初回100% |
| 駐車場 | 空無 |
| 諸費用 | ゴミ処理代2,500円 |
| 引渡時期 | 相談 |
特色
定期借家5年(再契約後は1年毎)、現状渡し、都市ガス有、飲食店可、ごみ処理代2,500円/月、1年未満は短期解約違約金有、家賃保証加入要、借家人賠償責任付火災保険加入要
コメント
★牧野駅より徒歩2分、店舗★
周辺地図
位置情報に関するご注意:現在位置情報は精査中の為、正確ではない場合があります。あくまで参考程度の情報となります。



