12841:店・事 アドバンスねやがわ2号館
| 賃料 | 19.8万円 |
|---|---|
| 共益費・管理費 | 賃料に含む |
| 坪賃料 | 10,513円 |
| 所在地 | 寝屋川市早子町 |
| 交通 | 京阪本線 寝屋川市駅まで 徒歩1分 |
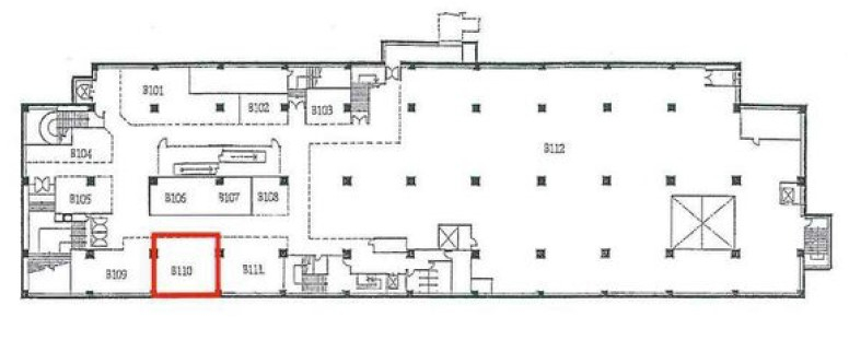
| 面積 | 62.26m²(18.83坪) |
| 築年月 | 1985/04 |
| 敷金 | 2ヶ月 |
|---|---|
| 礼金 | 1ヶ月 |
| 保証金 | - |
| 建物構造 | 鉄骨鉄筋コンクリート造 |
| 所在階 | B1階~B1階/8階建 |
| 取引態様 | 仲介 |
| 更新 | 2年 |
| 敷引・償却 | - |
|---|---|
| 火災保険 | 要加入- 保険期間2年 |
| 保証会社 | 必須 USENテナント保証 初回100%、1年更新料10% |
| 駐車場 | 無 |
| 諸費用 | 名店会出資金(契約時)50,000円 販促負担金(毎月)8,000円 賦課金(毎月)6,000円 |
| 引渡時期 | 即時 |
特色
現状渡し(スケルトン状態)、男女別共同トイレ有、軽飲食可、ごみ処理費別途要、名店会出資金50,000円、賦課金6,000円/月、販促負担金8,000円/月、営業時間制限10時~21時まで、家賃保証加入要、借家人賠償責任付火災保険加入要
コメント
★ アドバンス寝屋川店舗!!地下!!
周辺地図
位置情報に関するご注意:現在位置情報は精査中の為、正確ではない場合があります。あくまで参考程度の情報となります。





