12558:店・事 枚方中央ビル 3階
| 賃料 | 63.4392万円 |
|---|---|
| 共益費・管理費 | 211,464円 |
| 坪賃料 | 9,898円 |
| 所在地 | 枚方市岡東町 |
| 交通 | 京阪本線 枚方市駅まで 徒歩1分 |
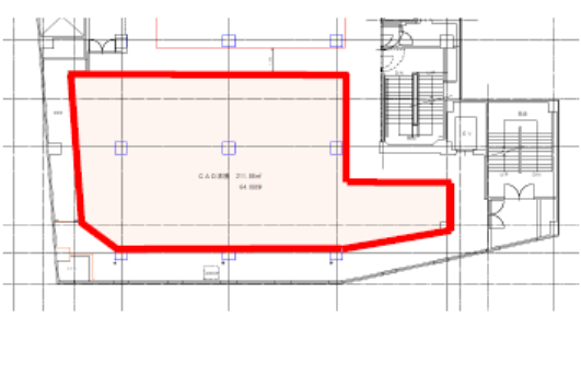
| 面積 | 211.86m²(64.08坪) |
| 築年月 | 1968/05 |
| 敷金 | 6ヶ月 |
|---|---|
| 礼金 | 1ヶ月 |
| 保証金 | - |
| 建物構造 | 鉄筋コンクリート造 |
| 所在階 | 3階~3階/7階建 |
| 取引態様 | 仲介 |
| 更新 | 定期借家 |
| 敷引・償却 | - |
|---|---|
| 火災保険 | 要加入- |
| 保証会社 | 必須 |
| 駐車場 | 近隣 |
| 諸費用 | |
| 引渡時期 | 相談 |
特色
飲食不可、定期借家契約(期間は要相談)、家賃保証加入要、エレベーター有、エスカレーター有
コメント
枚方市駅前大型店舗事務所





