8785:店・事 Glanz・N 2階
| 賃料 | 12万円 |
|---|---|
| 共益費・管理費 | 賃料に含む |
| 坪賃料 | 7,933円 |
| 所在地 | 寝屋川市打上宮前町 |
| 交通 | JR学研都市線 寝屋川公園まで 徒歩1分 京阪本線 寝屋川市駅まで バス20分 |
| 最寄バス停 | 望が丘小学校・中学校前 停歩4分 |
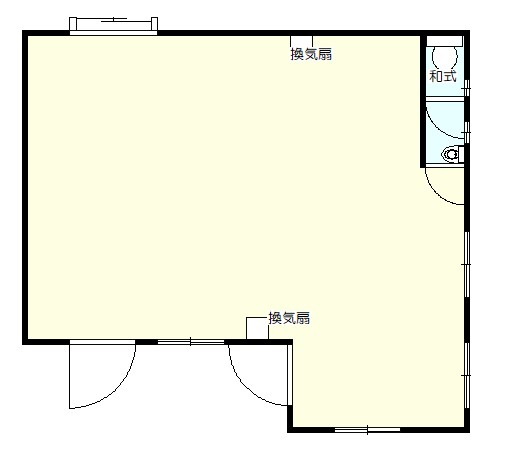
| 面積 | 50m²(15.12坪) |
| 築年月 | 1981/01 |
| 敷金 | 12万円 |
|---|---|
| 礼金 | 24万円 |
| 保証金 | - |
| 建物構造 | 鉄骨造 |
| 所在階 | 2階/2階建 |
| 取引態様 | 仲介 |
| 更新 | 2年 |
| 敷引・償却 | - |
|---|---|
| 火災保険 | 要加入- 保険期間2年 |
| 保証会社 | 必須 |
| 駐車場 | 無 |
| 諸費用 | |
| 引渡時期 | 即時 |
特色
元学習塾、現状有姿渡し、飲食不可、都市ガス有、上水道有、下水道、電気有、トイレ有、駐輪場有(台数等相談)、短期解約違約金有、ゴミ処理代実費、貸主免税業者、家賃保証加入要、借家人賠償責任付火災保険加入要
コメント
寝屋川市打上2階貸テナント♪寝屋川公園駅目の前♪
事務所利用や各種教室利用におすすめ♪
業種お気軽にご相談くださいませ。















