16285:店舗・事務所 高西町貸店舗
| 賃料 | 15.18万円 |
|---|---|
| 共益費・管理費 | |
| 坪賃料 | 6,087円 |
| 所在地 | 高槻市高西町 |
| 交通 | 阪急京都線 高槻市まで 徒歩23分 |
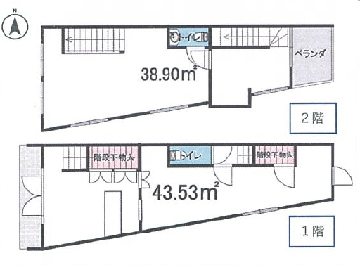
| 面積 | 82.43m²(24.93坪) |
| 築年月 | 1971/08 |
| 敷金 | 2ヶ月 |
|---|---|
| 礼金 | 1ヶ月 |
| 保証金 | - |
| 建物構造 | 木造 |
| 所在階 | 1階~2階/2階建 |
| 取引態様 | 仲介 |
| 更新 | 2年 |
| 敷引・償却 | - |
|---|---|
| 火災保険 | 要加入- |
| 保証会社 | |
| 駐車場 | 空有 |
| 諸費用 | |
| 引渡時期 | 即時 |
特色
電気有、上水道有、下水道、居抜き(元弁当屋さん)、飲食店可、家賃保証加入要、2年未満解約時違約金2か月分賃料





